Комната 71,00 м2 по ул. за 3500000 руб.

Цена 3 500 000 р.
Этаж 1/17
Этажность дома 17
Площадь 71 м2
Продам, кол-во комнат 1
Общее кол-во комнат 3
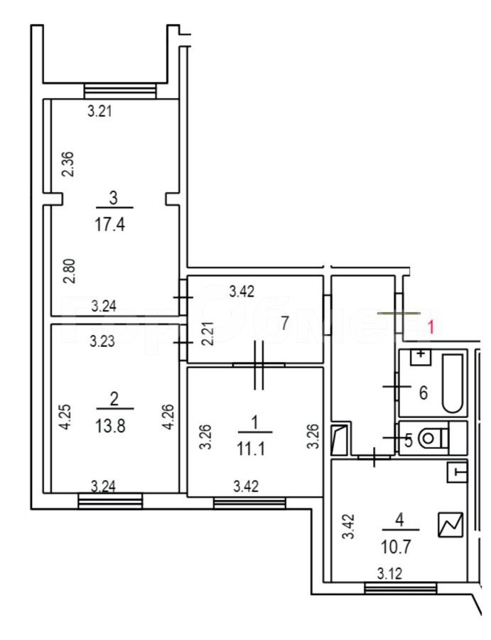
Продается комната в трехкомнатной квартире с окнами в тихий двор. В квартире три изолированные комнаты, кухня, раздельный с/у, большой коридор. Продаваемая комната самая большая в квартире. В соседних комнатах проживают тихие соседи. Чистый ухоженный подъезд, домофон, видеонаблюдение, хорошие соседи. Развитая инфраструктура, рядом школа и детский сада, парк, поликлиника, во дворе детская площадка, несколько сетевых магазинов, кафе, рестораны, фитнес-клуб, удобный выезд на основные транспортные магистрали города, парковка во дворе, много парковочных мест. Документы: Договор купли-продажи, один взрослый собственник, полная стоимость в договоре, в продающейся комнате никто не проживает и не зарегистрирован, свободная продажа.
Объявление № 23556000
Дата подачи:
6 ноября 2025 г. 0:07
Дата обновления:
6 ноября 2025 г. 0:07
Просмотров 27 Хотите продать быстрее?

Продавец
Агентство недвижимости:
ГУСЕВ ПЕТР АНДРЕЕВИЧ
Показать номер телефона
Пожаловаться
Комментарии:
Добавить